For your visual reference, here’s a photo gallery of Town Meeting articles:
Article 13 – Highway F-350 Pick-up
Articles 16, 17, 18 – Used Ladder Truck
Articles 16, 17, 18 – Redesigned Rescue 1
Article 19 – Dump Truck
Article 20 – Grove Street Water Tank Replacement
Article 20 – Grove Street Water Tank Replacement
Article 21 – Water Main
Article 23 – Wells 4 and 5
Article 24 – Middle School Auditorium Upgrades (Install air conditioning, repaint stage floor, replace curtains, stage rigging, control console, & light board)
Article 24 – Middle School Auditorium Upgrades (Install air conditioning, repaint stage floor, replace curtains, stage rigging, control console, & light board) int
Article 31C – Dog Park – 192 Hayden Rowe St
Article 31D – Open Space – Main Street
Article 31E – CPC McFarland-Sanger
Article 31E – McFarland Sanger House
Article 31F – Historic Preservation to rehab and restore the Rte 85 Stone Bridge
Article 31F – CPC Route 85 Stone Bridge
Article 31G – Construct a recreational path from Rte 85 to the Stone Bridge
Article 31H – Install fencing around the Claflin Fountain
Article 31I – Install protective netting at the Fruit Street Athletic Complex
Article 31J – Install a boat dock at Sandy Beach
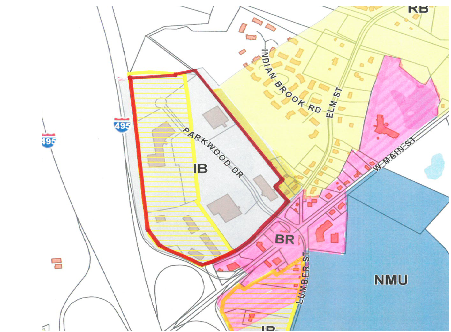
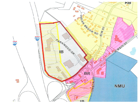
Article 32 – OSMUD
Article 38 – Elmwood Park Business District
Article 38 – Elmwood Park Business District IMG_9325
Article 38 – Elmwood Park Business District IMG_9327
Article 38 – Elmwood Park Business District IMG_9332
Article 42 – West Main Street Easement
Article 43 – Leonard Street Drainage Easement
Article 47 – Street Acceptance – Kerry Lane
Article 48 – Street Discontinuance